
Pilar de La Horadada, Costa Blanca Zuid
2
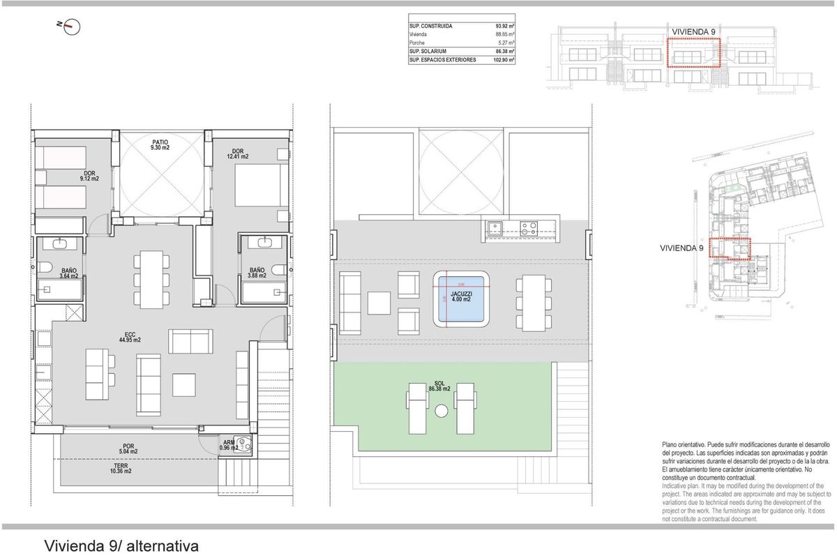
Slaapk.
2
Badk.
93
m²
1
Verd.

Neem contact met ons op voor meer informatie over deze woning.

Helga Horvath
helga@spainora.com
+34865691900
Ontdek deze moderne 2-slaapkamer bungalow in Pilar de la Horadada, gelegen in een exclusief nieuwbouwproject. Deze woning biedt een perfecte mix van comfort en stijl, ideaal voor zowel permanente bewoning als vakantieverblijf. Met een ruim terras en een functionele indeling is deze bungalow een uitstekende keuze voor wie wil genieten van de mediterrane levensstijl.
Gelegen in Pilar de la Horadada, de meest zuidelijke stad van de Costa Blanca, biedt deze bungalow een rustige woonomgeving op loopafstand van het stadscentrum. De stad staat bekend om zijn gastvrije sfeer en traditionele Spaanse charme, met een levendige hoofdstraat vol cafés, boetiekjes en pleintjes. De nabijheid van stranden als Torre de la Horadada en Mil Palmeras maakt het een ideale locatie voor strandliefhebbers.
Deze bungalow is een uitstekende investering voor wie op zoek is naar een eigentijds eigendom aan de Costa Blanca. De hoogwaardige bouw en moderne voorzieningen zorgen voor comfort en energie-efficiëntie het hele jaar door. Bovendien biedt de strategische locatie nabij stranden, golfbanen en luchthavens een geweldige basis om de regio te verkennen. Neem vandaag nog contact met ons op voor meer informatie of om een bezichtiging te plannen.
Parkeerplaatsen
1
Oplevering
2028 Q2
Kaart niet beschikbaar. Neem contact op voor locatie details.
Neem contact met ons op voor meer informatie over deze woning.

Helga Horvath
helga@spainora.com
+34865691900
Dichtstbijzijnde Strand
Strand
3.0 km
Dichtstbijzijnde Luchthaven
Internationale Luchthaven Regio Murcia (RMU)
30.2 km
Dichtstbijzijnde Luchthaven
Luchthaven Alicante-Elche (ALC)
50.2 km
Dichtstbijzijnde Ziekenhuis (24u)
Ziekenhuis Los Arcos del Mar Menor
11.5 km
Dichtstbijzijnde Golfbaan
Lo Romero Golfclub
3.1 km
Uw vertrouwde partner in Spaans kust vastgoed